[дача] проект бытовки 2х2 м
Для того, чтобы завести свет на участок, необходима бытовка. Я долго разглядывал готовые варианты, но решил, что они мне не подходят:
1. слишком дорого! 30 тысяч за маленькую деревянную бытовку это слишком. Металлическая такого же размера стоит от 45 тысяч;
2. готовые бытовки слеплены, извините, из говна. как еще можно назвать каркас из брусочков 50х50? пол из доски 20 мм, стенки из вагонки...еще бы картоном обшили ((.
3. они малы в высоту, а мой рост все-таки 192 см..
4. крыша готовых бытовок не имеет козырьков ни сзади ни спереди. т.е. вода стекает прямо по бытовке
и т.д. и т.п.
Посему было принято решение строить самостоятельно и начать ессно нужно с проекта.
Учитывая мой личный опыт строительства хозблока и беседки в 2010 году, я решил остановиться на этом проекте.
Размеры бытовки 2х2 метра. Это очень мало, согласен. Но в данном случае нужна бытовка строго определенного назначения:
1. ввод света;
2. хранение инструментов;
3. крыша над головой на первое время.
Поэтому для этого, строить дворец не вижу смысла.
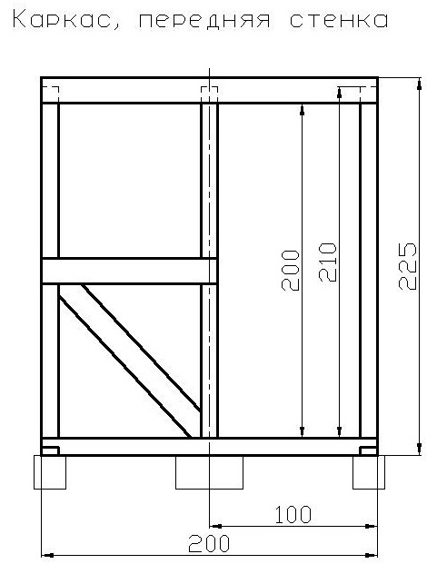
Сам проект представлен ниже, знатоки правил ЕСКД, сильно не пинайте. Я старался где можно им следовать, но без фанатизма. для себя, а не в альбом проектов.
Размеры указаны в см. Размеры обрешетки крыши 3 м (вида спереди в сборе с крышей нет)
теперь спецификация:
брус (основание и каркас) 100х100х6000 5 шт (382руб х 5=1910руб)
доска (обвязки, укосины, стропила и пол) 40х150х6000 11 шт(229руб х 11=2519руб)
доска (обшивка стен и полоток) 25х150х6000 28 шт (142руб х 28=3976 руб)
итого 8405 руб.
Сюда нужно будет добавить дверь. Окно с рамой уже есть.
Блоки основания 9 шт по 62 руб, итого 558руб.
Рубероид под основание, уголки крепежные, гвозди, шурупы, пропитку для основания и т.п. не считаю.
UPD. нашел ошибку. на третьем чертеже линии верхних концов стоек должны быть сплошными и жирными, поскольку они видны (т.е. если смотреть спереди брус впереди доски верхней обвязки).
Продолжение здесь.
Полный перечень ссылок на мой дневник (оглавление)
1. слишком дорого! 30 тысяч за маленькую деревянную бытовку это слишком. Металлическая такого же размера стоит от 45 тысяч;
2. готовые бытовки слеплены, извините, из говна. как еще можно назвать каркас из брусочков 50х50? пол из доски 20 мм, стенки из вагонки...еще бы картоном обшили ((.
3. они малы в высоту, а мой рост все-таки 192 см..
4. крыша готовых бытовок не имеет козырьков ни сзади ни спереди. т.е. вода стекает прямо по бытовке
и т.д. и т.п.
Посему было принято решение строить самостоятельно и начать ессно нужно с проекта.
Учитывая мой личный опыт строительства хозблока и беседки в 2010 году, я решил остановиться на этом проекте.
Размеры бытовки 2х2 метра. Это очень мало, согласен. Но в данном случае нужна бытовка строго определенного назначения:
1. ввод света;
2. хранение инструментов;
3. крыша над головой на первое время.
Поэтому для этого, строить дворец не вижу смысла.
Сам проект представлен ниже, знатоки правил ЕСКД, сильно не пинайте. Я старался где можно им следовать, но без фанатизма. для себя, а не в альбом проектов.
Размеры указаны в см. Размеры обрешетки крыши 3 м (вида спереди в сборе с крышей нет)
теперь спецификация:
брус (основание и каркас) 100х100х6000 5 шт (382руб х 5=1910руб)
доска (обвязки, укосины, стропила и пол) 40х150х6000 11 шт(229руб х 11=2519руб)
доска (обшивка стен и полоток) 25х150х6000 28 шт (142руб х 28=3976 руб)
итого 8405 руб.
Сюда нужно будет добавить дверь. Окно с рамой уже есть.
Блоки основания 9 шт по 62 руб, итого 558руб.
Рубероид под основание, уголки крепежные, гвозди, шурупы, пропитку для основания и т.п. не считаю.
UPD. нашел ошибку. на третьем чертеже линии верхних концов стоек должны быть сплошными и жирными, поскольку они видны (т.е. если смотреть спереди брус впереди доски верхней обвязки).
Продолжение здесь.
Полный перечень ссылок на мой дневник (оглавление)
Всего комментариев 10
Комментарии
-
Имел подобную "хижину" на участке, в течение 15 лет
Могу предложить упрощение проекта, чтобы еще дешевле получилось.
Такой брус на основание и боковые стойки - не нужен.
Вполне достойно себя повела доска 40х150. поставленная на ребро. Из нее изготавливается весь каркас.
Вязка по углам и врезка поперечины - в половину ширины доски. Угловые вертикальные стойки прибиваются в углы основания, изнутри, в плоскости боковой стены, с вырезом под заднюю/переднюю доску (вровень задним торцом с их плоскостью, с опорой на ребро доски основания). Средняя перекладина боковой стены прибивается к ним снаружи (ее поверхность получается в одной плоскости с доской основания). Соответственно, также, снаружи к стойкам прибивается боковая верхняя "стропильная" доска, которая врезается только в переднюю и заднюю верхние доски каркаса. Передняя и задняя верхние доски, вертикально врезаются в стойки (вровень с их задней/передней плоскостью). Задняя средняя перекладина также концами и срединой врезается в стойки. Средние стойки передней и задней стены, параллельные боковым стойкам (ребром выступают внутрь помещения) врезаются (в четверть ширины) в нижнюю и верхнюю перекладину, с опорой на переднюю/заднюю нижние и верхние доски (заднее ребро - вровень с плоскостью остальных досок задней стены). Потом между ними и боковыми стенами легко монтируются полки/подоконники/сиденья и т.п.
Средняя стропильная доска врезается "в пол доски" в переднюю и заднюю доски, вплотную к средним стойкам, и к ним также прибивается.
Укосины - из такой же доски, выпиливаются по месту и прибиваются к несущему каркасу "в ребро", на концах (они пилятся под углом и за угол как-раз и прибиваются)
Внешняя обшивка, вертикальной доской, по бокам шьется к трем доскам (нижней, средней и верхней) и боковым укосинам. Спереди и сзади обшивка может пришиваться еще и к ребрам угловых и средних "стоек", а также укосинам.
Укосины такие большие, на пол стены, не обязательно делать, достаточно "связать" все углы каждой стены укосинами от полуметра до метра длиной. На боковых стенах, укосины прибиваются к вертикальным доскам снаружи, а к горизонтальным - "в ребро" (в одной плоскости с горизонтальными досками).
Последовательность строительства:
- основание
- угловые стойки с боковыми и задними укосинами
- средние стойки
- передняя и задняя верхние доски
- "стропильные" доски (боковые и средняя)
- обшивка крыши
- обшивка боковых стен
- обшивка передней и задней стен (с накрытием торцов боковых досок обшивки).
- настил пола
Дверь можно врезать в переднюю стену. Окно в таком маленьком помещении - не обязательно. Света от открытой двери вполне достаточно
Кстати, обшивку я делал "отлетом" (частично - "горбыль"), "вперекрышку", т.е. сначала - один ряд, с промежутками, а затем - второй, накрывающий щели первого (дешевле, чем "обрезная" доска обходится).
P.S. Сначала написал, а потом вспомнил, что пол стелил не по каркасу, а по четырем доскам (40х150), положенным на каркас, поперек центральной поперечины, с опорой на боковые доски каркаса и поперечину. Соответственно, настил пола параллелен центральной поперечине основания. И настил - не из "сороковки", а из "дюймовки", т.е. 25х150, т.е. тоже дешевле, чем полностью пол из "сороковки". "На вскидку", раза в полтора можно сумму сократить.
P.P.S. Средние стойки передней и задней стены можно "связать" с основанием по-другому (проще), установив их со смещением на толщину доски, в угол между центральной перекладиной основания и передней/задней доской основания, аналогично угловым стойкам. Т.е. к средней перекладине основания стойка прибивается "в накладку". Стойка имеет вырез под заднюю доску, на торец которой опирается.
Также, можно упростить "вязку" стропильных досок, если переднюю и заднюю верхние доски установить не вровень с концами стоек, а сместить вниз на ширину доски. Тогда стропильная доска к стойкам прибивается "в накладку" и без врезки опирается на верхние переднюю и заднюю доски (с небольшой "засечкой", чтобы не сползла).
В принципе, можно вообще все без врезок собрать, "в накладку", но с врезкой - надежнее.
Прикинем цену:
брус (основание и каркас) 100х100х6000 0 шт (382руб х 0=0руб)
доска (каркас, укосины, стропила, лаги) 40х150х6000 8 шт(229руб х 8=1832руб)
доска (обшивка стен, пол, потолок) 25х150х6000 33 шт (142руб х 33=4686 руб)
итого: 6518 руб.
Сюда нужно будет добавить дверь. Окно с рамой уже есть.
Блоки основания 9 шт по 62 руб, итого 558руб.Запись от Kempo размещена 20.06.2012 в 14:59
Обновил(-а) Kempo 20.06.2012 в 23:36 -
Kempo да, спасибо. каркас из бруса - дело решенное. может это излишняя прочность, но зато это прочно..
в 2010 построил на другой даче хозблок и беседку по данной технологии из такого бруса. только сегодня любовался: прочно, красиво, надежно...
эти пара сэкономленных тысяч не стоят этого ощущения )) UPD. про пару тысяч написал ДО озвучивания цены кемпо... точно в цель!!!
окно (старую раму от чьей-то форточки со стеклом) я подобрал маленькое, 40х50 где-тоЗапись от vladimir555 размещена 20.06.2012 в 23:12
Обновил(-а) vladimir555 20.06.2012 в 23:31 -
У меня такая будка простояла с 1995г, по 2010г.
Не крашеная. После разборки, доски все еще пригодны к использованию, т.е. не сгнили. Доски каркаса даже не потемнели, чего, конечно, не скажешь об обшивке
. Крыша была покрыта рубероидом. Окна не было.
P.S. Если обрезную доску заменить на "деловой отлет", даже в несколько большем количестве, общая сумма будет еще дешевле.
Не вижу смысла делать будку, которая запросто простоит 15-20 лет, из материала, который рассчитан на гораздо более долгий срок эксплуатации. Тогда уж сразу строить из кирпича, чтобы и правнукам хватило
Хочешь, кстати, фото своего садового домика покажу (который строился пока будка стояла и сейчас продолжает достраиваться)?
Запись от Kempo размещена 20.06.2012 в 23:28
Обновил(-а) Kempo 20.06.2012 в 23:43 -
там грунт слабый, УГВ высокий.Цитата:Не вижу смысла делать будку, которая запросто простоит 15-20 лет, из материала, который рассчитан на гораздо более долгий срок эксплуатации. Тогда уж сразу строить из кирпича, чтобы и правнукам хватило
Хочешь, кстати, фото своего садового домика покажу (который строился пока будка стояла и сейчас продолжает достраиваться)?
это кстати еще одна причина: морозное пучение. поэтому пусть будет попрочнее.
конечно, показывайте, интересноЗапись от vladimir555 размещена 21.06.2012 в 00:11
-
По поводу прочности конструкции на каркасе из 40х150.
Будку я перемещал с места на место 3 раза. (по несколько метров). Т.е. заводили под нее лаги, поднимали, и рычагами, вдвоем, подкладывая трубки, перемещали будку на новое место. Будка вполне нормально выдержала эти три переезда. Грунт у нас тоже пучинистый. У меня есть подпорные стенки на участке (на склоне участок). Использовал 57-ю трубу - двухметровые трубы, забитые на глубину полтора метра (глубина промерзания грунта у нас - около метра). Так даже с такой глубины некоторые трубы вылазят постепенно, приходится их время от времени, по весне, обратно загонять.Запись от Kempo размещена 21.06.2012 в 05:53
Обновил(-а) Kempo 21.06.2012 в 07:10 -
Запись от Kempo размещена 21.06.2012 в 07:17
-
Запись от vladimir555 размещена 21.06.2012 в 10:48
-
Размер 5,5х6 (наружный).
У меня фундамент - 1,4м в земле, в верхней части склона (подвал под всем домом 2,1м высотой). Уклон, вдоль боковой стены - 5см/1м, вдоль лицевой стены (которая с двумя окнами внизу и с двумя маленькими вверху, в крыше/мансарде) - 2см/1м. Т.е. склон слегка по диагонали расположен. Первое фото - с верхнего угла дома по склону, второе - снизу, с противоположной точки.
Сначала копал траншею, ширинной "в штык" (около 25-30см), на 1,4м. Копал вручную, целое лето (лом+совковая лопата)
Сверху поставил опалубку.
С опалубки в траншею спустил рубероид, вертикальными полотнами, внахлест, по наружной стене, до дна.
Установил арматуру и залил бетоном.
Изнутри фундамента землю вынули экскаватором и залили пол бетоном.
Потом положили слой рубероида по верху фундамента и доложили цоколь кирпичем, установив подвальные окна.
Поверх цоколя опять слой рубероида и затем кирпичная кладка стен, с напуском на цоколь (видно на фото).
Перекрытие над подвалом - 5 рельсов железнодорожных, такое же, рельсами - поверх первого этажа. Мансардная часть - деревянная.
"Висячее" крыльцо - 5 рельсов, от узкоколейки, один конец которых снизу упирается в рельс перекрытия подвала, который в метре от стены, средина - на цоколе лежит, а второй конец - на 1,5м торчит наружу.
Когда делал отмостку, открывал часть фундамента с верхней стороны склона (откуда вдоль склона верховые воды идут) и покрывал гудроном, на горячую, на 10-15см выше уровня земли, с заливкой верхнего края рубероида, который в землю уходит. Отмостка, пока, отсыпана шлаком фракции 5-20 (он постепенно чуть не в камень слеживается). Поверху хочу асфальтом закатать, в перспективе, когда площадку под машину буду асфальтировать. И по краю отмостки - дренажная канава будет с водостоком поверх нее (вода с отмостки - по водостокам уйдет, верховая - по дренажу).
Со стороны дороги, которая выше по склону (3м от стены дома) - водоотводная траншея, в которой лежат отрезки труб Ф219, по 3-5м (самая длинная труба - въезд на участок и т.д., в обе стороны, с промежутками между трубами по метру - для воды, чистки труб и дна траншеи.
Ширина участка вдоль дороги - 22м.
Грунтовые воды у нас довольно глубоко, но почва - глинистая и пучит ее по-страшному. А по весне верховая вода вдоль склона идет, поверх еще не оттаявшего слоя почвы, пока на всю глубину не оттает.
В перспективе, наружную поверхность цоколя, над землей, или "шубой" покрою (штукатурка, в которую камни вдавлены), или обошью чем-нибудь (от денег зависит) сайдингом, к примеру, или камнем (если разбогатею)
Запись от Kempo размещена 21.06.2012 в 11:24
Обновил(-а) Kempo 21.06.2012 в 11:50 -
Подпорные стенки, которые на участке, видно на некоторых фото из моей галереи.
Стенка - 57-е трубы, забитые примерно через 700-800мм, на которые опирается волнованный шифер, волной - вдоль стенки. Каждый лист шифера опирается на 3 трубы. На крайней трубе идет нахлест следующего листа.
Здесь, справа от машинки видна подпорная стенка, которая в средине участка:

А здесь - "главная" - по краю участка, тоже справа от машинки. В средине стенки труба далеко вылезла, да и других много приподнялось - грунт "пучит". Изначально, верх всех труб был на одной линии - по "шнурке":

Местами, по стенке, участок выше соседского на полметра.
P.S. Кстати, еще о доске и брусе. Несущая способность горизонтальной доски 40х150 (основание, стропила), поставленной на ребро, в вертикальной плоскости, выше, чем у бруса 100х100. А нагрузку нужно, в основном, снеговую выдерживать (от снега на крыше) или нагрузка на пол (у меня, например, на полу будки стояло мешков 7-8 цемента), т.е. именно в вертикальной плоскости.Запись от Kempo размещена 21.06.2012 в 14:54
Обновил(-а) Kempo 21.06.2012 в 15:15 -
Запись от vladimir555 размещена 23.06.2012 в 23:27





